极简·致美,圣和地板将空间还给生活!
项目信息:山东临沂宝德新领域
项目名称:小高顶层
项目地址:临沂大剧院东邻
设计团队:刘婧寒,李宗尧
设计风格:现代简约
项目面积:140平米
直抵人心的美,不需繁冗的外表为夸饰,简单惬意才更显格调,最高级的审美,一定是极简。
杨绛曾说过:人生最曼妙的风景是内心的淡定与从容懂得审美的人,越简单,越自由。
(图片来源:圣和地板公众号,侵删)
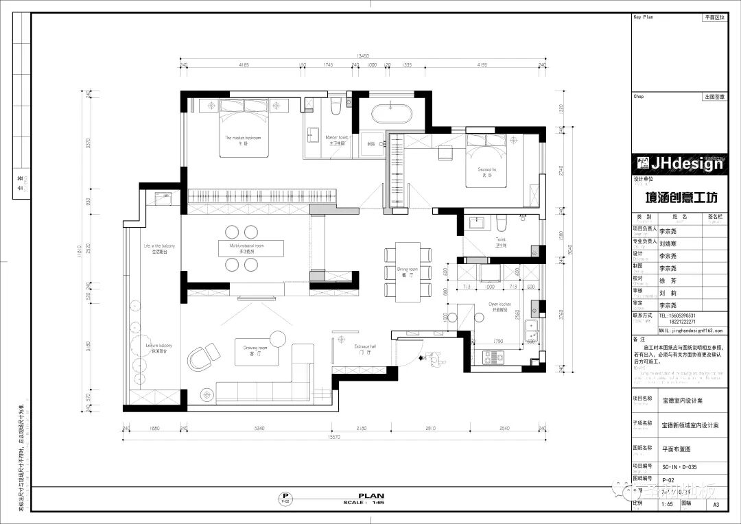
项目平面图
简化的布局,利落分明的动线,大量的留白演绎了何为,恰到好处的净 ,妙到分毫的境。
玄 关
玄关的大门正对客厅区域,在中间加入2道金属玻璃屏风,后方的沙发布置若隐若现的效果,一进门就感受到了一种轻奢的高级感。
(图片来源:圣和地板公众号,侵删)
整面的隐形鞋柜,搭配一人高的穿衣镜,让玄关功能实用优雅。
餐 厅
从玄关率先进入餐厅区,原木风让玄关与餐厅连成整体,轻奢的造型吊灯,搭配素雅的灰色餐桌椅,带来一种精致优雅的氛围感。
提亮餐厅亮度,纯净的线条和净白色引入厨房的自然光。
(图片来源:圣和地板公众号,侵删)
(图片来源:圣和地板公众号,侵删)
用很少的材料、色彩、灯光与装饰元素,打造纯粹质朴、没有杂质的空间,感官上简约整洁,品位和思想上的优雅,虽然简约,却不简单。
(图片来源:圣和地板公众号,侵删)
客 厅
(图片来源:圣和地板公众号,侵删)
客厅采取无主灯的天花,纯白包裹的整个空间,加以金属、大理石、原木、织物等质感相异的材料进行搭配,营造出一种朴素极简的设计效果。

(图片来源:圣和地板公众号,侵删)
电视吊柜墙的设计非常吸睛,中间镂空的造型,加入木色、大理石更具层次感。

(图片来源:圣和地板公众号,侵删)
将生活阳台纳入客厅,于视觉上增加空间感和通透感,正面的原木色阳台柜,衔接地台设计也太亮眼了。
茶 室

(图片来源:圣和地板公众号,侵删)
茶室以原木色为基调自带高级感,白色与木色丰富空间的色彩层次,充满宁静治愈的感染力,最值得一提的是全屋铺设的浅胡桃色木地板,既符合“天清地浊”的风水之道,带来了极简低奢的格调。

(图片来源:圣和地板公众号,侵删)
圣和地板SN-ND007
胡桃色与原木肌理的碰撞,将不拘的粗狂与入微的细腻,结合得恰到好处,极简,极美。

(图片来源:圣和地板公众号,侵删)

(图片来源:圣和地板公众号,侵删)
(文章来源:圣和地板公众号,侵删)






















